
Maintaining our heritage and serving our community…..
All Saints’ is embarking on an ambitious project to repair and improve the church building and to replace the ageing and deteriorating church hall.
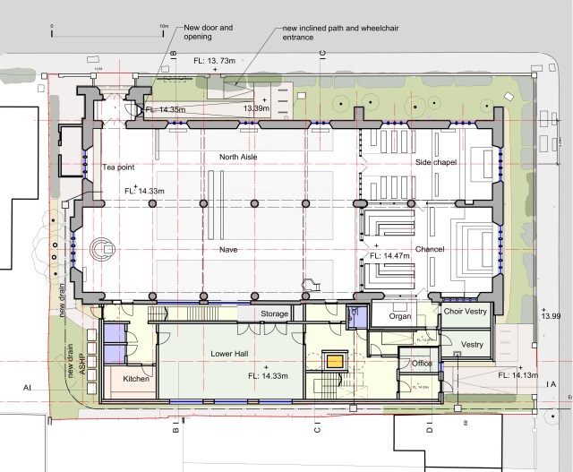
The floor plan below shows the layout of the present church and hall.

Project A will involve the following improvements to the church building: –
- Re-roof the entire building with appropriate clay tiles, lead flashings and and lead centre gutter
- Installation of Photo-Voltaic Cells to the south-facing slopes
- Repairs to rainwater goods
- Consolidation and repair of stonework
- New protective coverings to the stained glass windows
- New insulation
- New disabled access to the north door
- New tea and coffee point
- New ground-source heat pumps and underfloor heating
- New carpets
Projects B, C & D will involve work to the church hall: –

Project B ( as shown above)retains the existing hall building, but allows for refurbishment as follows:-
- Complete re-decoration
- Repairs to the structure
- New Roof
- New windows
- Imroved insulation
- Re-fitted kitchen
The plan and model below shows Projects A + C with new disabled access to the church, new tea point and adjoining new single storey church hall.


Project C would see the existing hall demolished and replaced with a larger single storey building. It would incorporate: –
- Photo Voltaic cells to the roof
- New toilets/showers
- High degree of insulation
- Industrial kitchen
- New vestries
- Direct access to the church
The plan and model below shows Projects A + D with the church improvements as before, but with the addition of a new three storey church hall, designed to complement the existing church structure.

